Oebisfelde / Attraktive und frisch renovierte 3-Zimmer-Mietwohnung in schöner Lage - BAHR Immobilien - Ihr Immobilienmakler in Peine und Umgebung

Oebisfelde / Attraktive und frisch renovierte 3-Zimmer-Mietwohnung in schöner Lage

Objekt-Art: Mietwohnung
PLZ: 39646
Objekt-Ort: Oebisfelde
Mietpreis Netto: 700,00
Wohnfläche gesamt ca: 92,00
zzgl. Betriebskostenvorauszahlung: 180
Kaution: 2
Zimmer: 3
Küche: 1
WC: Bad mit Dusche, Wanne, WC und Einbaumöbeln
Balkon: vorhanden
Etage(n): 1. Obergeschoss
Wohnungen gesamt: 1
Behindertengerecht: nein
Baujahr: ca. 1992
Stellplätze: 1 x inklusive - Aussenstellplatz
Frei ab: nach Vereinbarung

Beschreibung:

Die hier angebotene 3-Zimmer-Mietwohnung befindet sich im Obergeschoss eines gepflegten Mehrfamilienhauses in Oebisfelde, welches Anfang der 90erJahre erbaut worden ist. Insgesamt befinden sich 6 Wohnungen mit sehr angenehmer Mieterstruktur im Hause.

 

Das attraktive Mehrfamilienhaus befindet sich im Bereich Niendorfer Straße / Asternweg / Nelkenweg, einer gefragten Wohnlage in Oebisfelde. Im Umkreis befinden sich nahezu sämtliche Geschäfte des täglichen Bedarfs, die man fußläufig erreichen kann. Schulen, Kindergärten, Ärzte und Sportvereine sind in Oebisfelde angesiedelt. Durch eine ausgebaute Schnellstraße und den Oebisfelder Bahnhof erreicht man z. B. Wolfsburg in wenigen Fahrminuten. Daher erfreut sich der Ort zunehmender Beliebtheit bei Berufspendlern, denen das Preisniveau in Wolfsburg zu hoch erscheint und die eine dörfliche Idylle neben dem Naturpark „Drömling“ mehr bevorzugen, als das Leben in der großen Stadt.

 

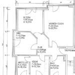
Der Grundriss der Wohnung ist gut durchdacht und umgesetzt worden. Insgesamt verteilen sich ca. 92m² Wohnfläche auf ein großes Wohn.-Esszimmer mit Zugang zu einem schönen Balkon, eine Küche, ein Schlafzimmer, ein Tageslichtbadezimmer mit Badewanne, Dusche und Einbaumöbeln sowie ein Arbeits-/Kinderzimmer. Ein Abstellraum neben der Küche und ein PKW-Stellplatz runden dieses Angebot ab. Die Wohnung ist nach umfassender und ansprechender Renovierung frei und kann zeitnah bezogen werden. Sie macht eine  modernen und wertigen Eindruck. Bad Bad stammt aus den 90ern, ist sauber und gepflegt.

 

Der vom Gesetzgeber geforderte Energieausweis liegt vor:
-Baujahr Gebäude 1992
-Baujahr Anlagentechnik 1992
-Wesentlicher Energieträger Erdgas
-Endenergiebedarf 99 kWh(m².a)
-Klasse C

Hinweis

Alle in diesem Angebot enthaltenen Angaben, Abmessungen und Preisangaben beruhen ausschließlich auf Angaben des Auftraggebers oder eines Dritten. Der Makler hat die Angaben nicht geprüft und macht sie sich nicht zu Eigen. Der Makler übernimmt keine Haftung und Gewähr für Vollständigkeit, Richtigkeit und Aktualität dieser Angaben. Irrtum und Zwischenverkauf/Vermietung bleiben vorbehalten. Für die Vereinbarung eines Besichtigungstermins stehen wir Ihnen nach vorheriger telefonischer Terminabstimmung jederzeit zur Verfügung. Telefonisch erreichen Sie uns: Montag-Dienstag-Donnerstag-Freitag von 9.00 - 12.00 Uhr Montag-Dienstag-Donnerstag von 14.00 - 17.00 Uhr

Verbraucherinformation

Online-Streitbeilegung gemäß Art. 14 Abs. 1 ODR-VO: Die Europäische Kommission stellt eine Plattform zur Online-Streitbeilegung (OS) bereit, die Sie hier finden: http://ec.europa.eu/consumers/odr